PL
  • PL
  • EN
  • DE
UL. RAKOWIECKA 41, 02-521 WARSZAWA

Domy szkieletowe

Zamów po korzystnej cenie od producenta
Zamawiam konsultację
Domy szkieletowe
Sauna, Łaźnia ogrodowa
USŁUGI REMONTOWE
oferujemy

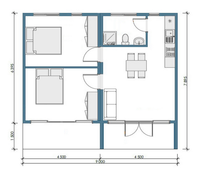
DOUBLE BARN 74 m²

od 36 900 €
Powierzchnia
73 м2
Rozmiar
9000х7895
Podłogi
2
Sypialnie
3
Drugie światło
Yes
Łazienki
1
Pobierz nasz katalog PDF
Zamówienie

OPIS

Przedstawiamy zestaw domu szkieletowego, który możesz zbudować samodzielnie!


Projekt "Double BARN 74 m²" to rozszerzona wersja zestawu "BARN 42 m²", zaprojektowana z myślą o zapewnieniu większej przestrzeni mieszkalnej dla rodziny 3–4-osobowej. Zestaw zawiera dwa pełnowymiarowe pokoje na parterze oraz jeden dodatkowy pokój na piętrze. W drugiej części domu znajduje się przestronna kuchnia typu studio i łazienka.


Zestaw domowy nie zawiera ścianek działowych, a proponowany układ wnętrza ma charakter orientacyjny. Oznacza to, że masz pełną swobodę w aranżacji wnętrza i dopasowaniu przestrzeni do własnych potrzeb.


Zestaw zawiera kompletną listę wszystkich niezbędnych materiałów i elementów złącznych oraz szczegółową instrukcję montażu krok po kroku.
Aby zbudować dom, należy samodzielnie przygotować fundament. Może to być fundament na śrubach, słupach betonowych lub innego typu. Na przykład szacowany koszt instalacji fundamentu śrubowego na 15 palach, w zależności od terenu, wynosi od 40 000 do 60 000 UAH.

Nasze zestawy domów do samodzielnego montażu oferują elastyczny układ wnętrz, a wersja podstawowa nie zawiera materiałów na ścianki działowe ani wykończenia. Możesz wykończyć wnętrze dowolnymi materiałami dostępnymi na rynku, takimi jak imitacja drewna, boazeria lub sklejka meblowa. Dom składa się z dwóch modułów w stylu BARN, tworząc funkcjonalny i nowoczesny projekt.


Dostępne opcje dodatkowe:

Czas dostawy zestawu domu to 3–4 tygodnie od daty zamówienia.

Obecnie oferujemy następujące 4 typy zestawów domów:

Wybierz swój zestaw domu i zacznij mieszkać u siebie już dziś!